本物件のおススメPoint
※本物件に関する情報は成約当時のもので、現在販売中のものと異なる場合がございます。
本物件のおすすめポイント
【マンション】
■ 1997年(築26年)の新耐震基準マンション
■ オートロック付きエントランスは広々としており豪華なつくりです!
【交通】
■ JR横須賀線・湘南新宿ライン「保土ケ谷」駅まで徒歩15分
■ 「横浜」駅まで1駅。「品川」駅までも電車で約25分、乗り換えなしでアクセス良好
【お部屋】
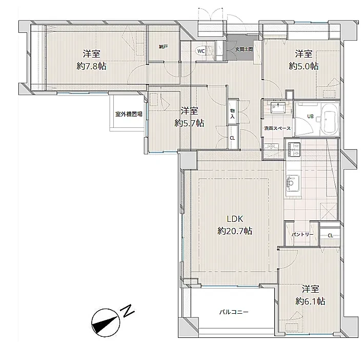
■約101㎡の大空間。 LDKは約20.7帖と、広々とお過ごしいただけます
■ リノベる。で人気の高い《tea time》コンセプトの内装!
■ 大切なペットと一緒に暮らせます
【リノベる。UのPoint】
1.
オーダーリノベーション住宅累計施工件数6,000戸超。マンションリノベーション売上高No.1※のリノベる。として多くのお客様の暮らしに向き合って蓄積したトレンドやアイディアとノウハウを注入した、間取りや設備・素材の選定を行います。
2.
リノベーション協議会の優良なリノベーションの品質基準「R1住宅」を標準化し、配線や配管など見えない部分のインフラも安心の品質を提供します。
3.
ご希望の方にはインテリアコーディネートのご提案も行います。
4.
保証や定期点検、アフターサービスはもとより、入居後も「かしこく素敵に」暮らすための情報やサービスを特典、優待する「リノベる。」契約者専用サービス「リノベる。Days」も合わせて提供します。
リビングダイニング
約20.7帖のお子様も走り回れる広々としたリビングダイニング。北欧の豊かな暮らしがお手本の、柔らかな色と素材を使って、丁寧に仕上げられたお部屋です。
オーク材のフローリングは木目が美しく、やさしく温かみのある空間になっています。
2面採光のため、お部屋が全体が明るく、通気性も良好です。
また、リビングの1面には、チャコールのクロスが施されています。お部屋のアクセントになるのはもちろんなのですが、実はこの壁紙は、お子様のいるご家庭におススメな、黒板のようにチョークで書き消しできる特殊加工が施されています。
キッチン
キッチンの腰壁には、落ち着いたグレー系の塗装と、モールディングが施されており、お部屋のアクセントになっています。
また、キッチン横には収納容量のあるパントリーがございます。ストック品が多くなりがちな大家族の方もスッキリとしたキッチンスペースを保つことができるのが嬉しいポイントです。
リビングにいるお子様の姿を見守ることができる、対面式のオープンキッチン。3口コンロのシステムキッチンは、広さも十分あり、お子様と一緒にお料理も楽しめます。
キッチンスペースからは床材が"塩ビタイル"に切り替えられており、汚れに強く、お掃除がしやすい仕様になっています。
洋室
個室は、計4室ご用意。全個室に窓とクローゼットが設置されています。
もっとも広い約7.8帖の洋室には、大きなサイズのベッドを設置できるのはもちろん、ベビーベッドや作業用デスクを置くなど、寝室+αのお部屋としても広々お使いいただけます。
洗面所・浴室

置き型シンクと集成材で作られた造作の洗面化粧台。洗面スペースの壁面には、ベージュ系のアクセントクロスが施されており、上品な仕上がりになっています。また、下部に設けられた棚板は、収納するものに合わせて高さを変えることも可能です。
浴室は、リノベるのお客様に人気の、シンプルでありながら機能性を兼ね備えたTOTOの製品を使用しています。1418サイズという足を伸ばしても広くお使いいただけるサイズで、毎日の疲れを癒してくれます。
もちろん、トイレも新品に交換済みです。洗面所と同じ、ベージュ系のアクセントクロスが施されており、上品な印象です。