特徴

※本物件に関する情報は成約当時のもので、現在販売中のものと異なる場合がございます。
― マンション ―
● ペット飼育可(細則あり)
● 2021年大規模修繕工事済み
― エリア ―
● 東京メトロ東西線「西葛西」駅まで徒歩3分
● 周辺にはスーパーやコンビニ、公園などがあり利便性に優れた立地
― お部屋 ―
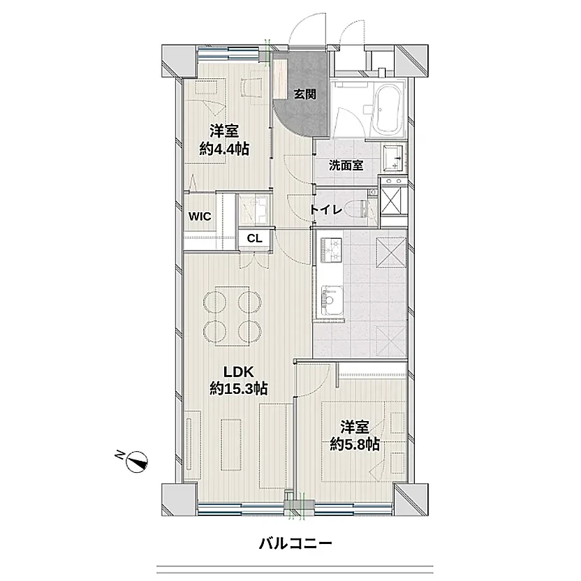
● 4階南西向きにつき、日当たり・通風〇
● コンパクトながらも、約15.3帖の広々としたリビングダイニングキッチン
● 玄関のアール框は、奥行きが出て広く柔らかいイメージを演出しています
● 適合リノベーション住宅のR1基準(マンション専有部内の給排水管などの重要インフラに検査を行い、2年以上の保証及び住宅履歴を付帯)を満たした <R1住宅> 取得予定
リビングダイニング
リビングダイニングキッチンは、約15.3帖。
バルコニーがリビングダイニングに面しており、白を基調とした壁と天井及び、キッチンのタイルがさらにお部屋を広々と明るく感じさせます。
また、床は温かみのある天然木の味わいを感じられるフローリングを採用し、ナチュラルな雰囲気を演出しています。天井にはレールライトを設置。例えばスポットライトを設置してアートを照らしたり、小型のペンダントライトを並べて配置するなど、照明選びとお部屋づくりの幅が広がります。
キッチン
対面キッチンになっており、家事をしながらリビングでお過ごしのご家族とのコミュニケーションをとることが可能です。冷蔵庫やカップボードを置いても余裕のある通路幅を確保しており、ご家族で協力してお料理しても窮屈感がありません。
また、キッチンの腰壁には釉薬の自然な表情が感じられる、ホワイトのタイルを採用。お気に入りのコーヒーミルや豆を置けば、カフェ風な雰囲気を楽しめます。
洋室

個室は、約4.4帖・約5.8帖の2部屋をご用意。
4.4帖の洋室にはウォークインクローゼットもご用意しており、収納力も◎です。
玄関

玄関スペースには、アール框(かまち)を採用しており、奥行きが出て広く柔らかいイメージを演出しています。
床にはモルタル仕上げを採用、壁にはナラ材のリアルパネルをアクセントとして施しており、自然の表情を愉しむことができます。
腰の高さまであるオープンタイプのシューズクローゼットは、ショップのように靴をディスプレイして楽しめ、靴をすぐに取り出せるのはもちろん、棚板の位置を変えれば、ブーツ等の長い靴や、お子様の外遊びグッズなどを置いておくこともできる、可変性のある収納です。